aaaaaaaa













Severný palác (North Palace)
 

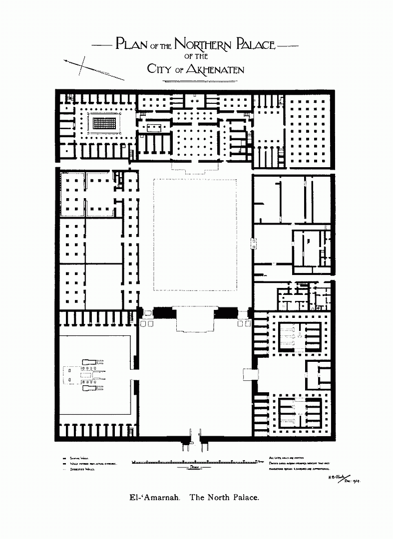
Pôdorys paláca vľavo je prevzatý z publikácie


Whittemore, T. 1926. The Excavations at El-'Amarnah, Season 1924-5. The Journal of Egyptian Archaeology 12. 1/2 (Apr.), 3-12, pl. II.

Je to pôvodný plán, zhotovený počas vykopávok v r. 1924. Pre orientáciu: šírka nádvoria uprostred komplexu je asi 52 metrov. Vľavo hore je menšia záhrada (viditeľná podľa mriežky pre zavlažovanie). Celkom hore uprostred je trónna miestnosť. Veľký čiarkovaný obdĺžnik na centrálnom nádvorí vyznačuje ďalšiu záhradu, táto bola zapustená nižšie voči okolitému terénu. Sektor vľavo dole slúžil pre ceremoniálne účely. 


K fotografii dole:

Severný palác spolu s Malým Atonovým chrámom sú stavby, ktoré sú pomerne intenzívne reštaurované a rekonštruované. Veľká časť materiálu, ktorý je viditeľný, je zo súčasnosti. Je to výsledok snahy zvýšiť atraktivitu pamiatok v Amarne (Achetatone). Nové tehly z nílskeho bahna sú pravouhlé - neobrúsené vekmi. Rekonštruované základne stĺpov sú svetlejšie a bez poškodení.

Obdĺžnikový "bazén" v popredí je vyššie spomínaná malá záhrada, zachoval sa aj zvyšok potrubia zavlažovacieho systému. Palmy a vysoká tráva rastú na mieste veľkej záhrady na centrálnom nádvorí. Fotografia je snímaná od okraja komplexu pri malej záhrade smerom k hlavnému vchodu.












© Gerhard Huber

https://creativecommons.org/licenses/by/4.0/deed.en








Vľavo: Výzdoba severného paláca - nástenná maľba zobrazujúca
rybárika strakatého (Ceryle rudis) v papyrusovej mokradi.

Kópia - tempera na papieri - autorka Nina M. Davies











Reálny vzhľad rybárika strakatého

Autor fotografie:
By Ji-Elle - Own work, CC BY-SA 3.0, https://commons.wikimedia.org/w/index.php?curid=31058064





<<< Späť na mapu mesta